Volksschule Mariagrün, Graz

Wettbewerb 2010

Das neue Schulhaus fügt sich als einfacher und zugleich prägnanter Kubus selbstverständlich in die aufgelockerte Villenbebauung und den Park.
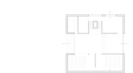
Der öffentliche Sockel öffnet sich tribünenartig in Richtung Hang und Sportfeld. Jede Lernzone ist eine abgeschlossene intime Einheit auf einer Etage. Hier findet der Unterricht ungestört und überschaubar statt. Die Lehrerzone in der Etage dazwischen ermöglicht sowohl ideale Kommunikation zwischen den Kollegen als auch kurze Wege zu der entsprechenden Lernzone. Der unterirdische Turnbereich ist von oben belichtet und über einen zweiten Eingang unhabhängig vom laufenden Schulbetrieb separat zu erschließen.
Die trichterförmigen Fensterleibungen der Holzfassade sind je nach Himmelsrichtung an den Sonneneinfallswinkel angepasst. So wird die gesamte Glasfläche zur solaren Energiegewinnung herangezogen und die ansonsten identische Fassade durch die Fenster subtil variiert. Mit mechanischer Klimatisierung und Wärmerückgewinnung wird der Passivhausstandart erreicht.

Auftraggeber:
— Stadt Graz
Architekten:
— Grischa Leifheit Architekt, Berlin
— Atelier Loidl Landschaftsarchitekten, Berlin
Nutzung:
— Schulgebäude
BGF:
— 2.300 m²
geschätzet Baukosten:
— 4.200.000 €

2.OG Lehrer
1.OG Schüler
EG