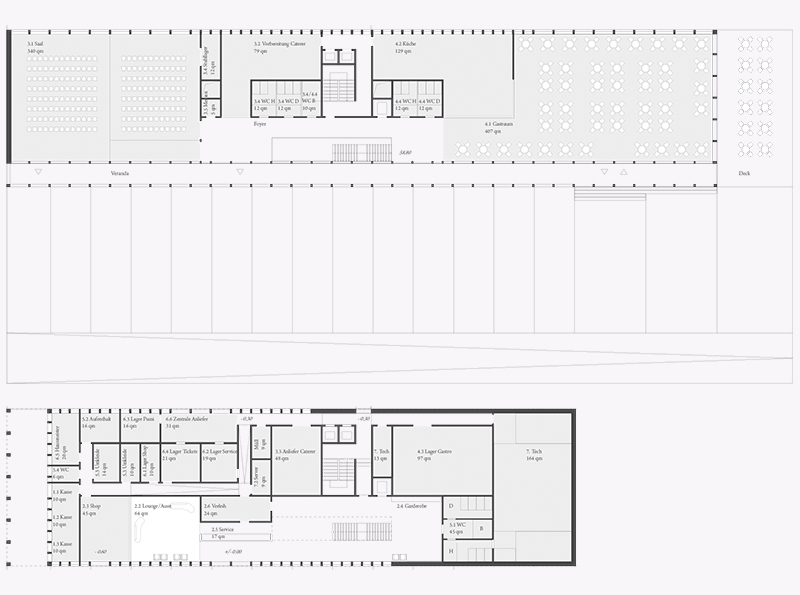
Besucherzentrum IGA Marzahn

Wettbewerb, 2013

Auftraggeber:
— Grün Berlin Stiftung
in Kooperation mit:
— Grischa Leifheit Architekt, Berlin
Nutzung:
— Besucherzentrum
BGF:
— 2.200 m²